德協通風提供離心風機、羅茨風機、鍋爐引風機、消防排煙風機等工業風機的廠家價格和解決方案。
9-26型高壓離心通風機,一般用于鍛冶爐及高壓強制通風,亦可用于輸送物料、空氣及無腐蝕、不自燃、不易爆、不易揮發、不含粘性物質之氣體。介質溫度一般不超過50℃,高不超過80℃,介質中所含塵土及硬質顆粒物不大于150mg/m3。
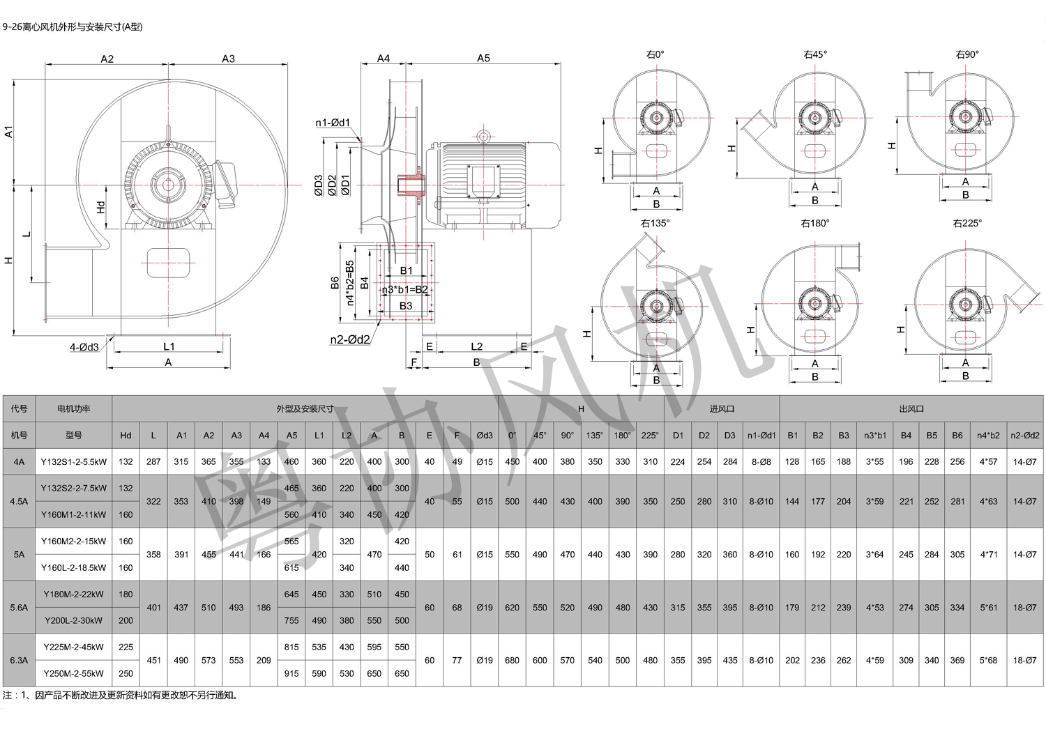
9-26型A式傳動高壓離心風機
德協風機生產的9-26型高壓離心通風機,一般用于鍛冶爐及高壓強制通風,亦廣泛用于輸送物料,可適用于輸送空氣及無腐蝕、不自燃、不易爆、不易揮發、不含粘性物質之氣體。輸送介質溫度一般不超過50℃,高不超過80℃,介質中所含塵土及硬質顆粒物不大于150mg/m3。該風機還可用作水泥窯外分解工藝(機號16以上),鋼治煉等特殊場合使用的高溫風機(改用耐熱,高強度材料)。
高壓離心通風機的型式
1、高壓離心通風機均為單吸入,通常有№4、4.5、5、5.6、6.3、7.1、8、9、10、11.2、12.5、14、16,共13個機號。
2、高壓離心通風機通常制成右旋和左旋兩種型式。
3、高壓離心通風機的出口位置以機殼的出口角度表示,“左”、“右”風機機殼制成0度、45度、90度、135度、180度、225度。
高壓離心通風機的結構
德協風機的高壓離心通風機主要由葉輪、機殼、進風口、支架等組成。
(1)、葉輪:9-26型風機為16片葉片,屬前彎型。葉輪擴壓器外緣高圓周線速度不得超過140m/s,葉輪成形后,經靜、動平衡校正,故運轉平穩。
(2)、機殼:用普通鋼板焊接成蝸形殼整體。
(3)、進風口:做成收斂式流線型的整體結構,用螺栓固定在前蓋板上。
(4)、傳動組:由主軸、軸承箱、聯軸器等組成。主軸由鋼制成,軸承箱整體結構。采用滾動軸承,滾動軸承,用潤滑脂潤滑。






