德協通風提供離心風機、羅茨風機、鍋爐引風機、消防排煙風機等工業風機的廠家價格和解決方案。
4-79型離心風機,一般用于工廠或大型建筑物的室內通風換氣,它既可輸入氣體,也可輸出氣體。它輸送的氣體為空氣或其他不自燃、不自爆、無纏繞性、對人體無害、對鋼鐵材料無腐蝕之氣體。氣體內不得含粘性物質,所含塵土及硬質顆粒物不大于150mg/m3。氣體溫度不得超過80°C。其他性能相近者亦可選用。
風機的用途
4-79型離心風機,一般用于工廠或大型建筑物的室內通風換氣,它既可輸入氣體,也可輸出氣體。它輸送的氣 體為空氣或其他不自燃、不自爆、無纏繞性、對人體無害、對鋼鐵材料無腐蝕之氣體。氣體內不得含粘性物質,所含塵土及硬質顆粒物不大于150mg/m3。氣體溫度不得超過80°C。其他性能相近者亦可選用。
離心風機的型式
風機可制成逆時針旋轉和順時針旋轉兩種型式。葉輪順時針旋轉者稱順時旋風機,以“順”表示,反之稱逆旋風機,以“逆”表示。
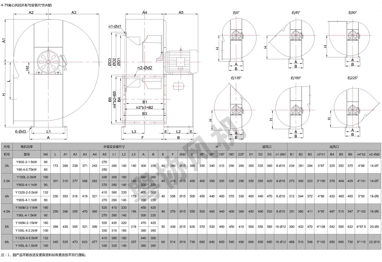
離心風機的出口位置,以機殼的出風口角度表示。4-79№3A~6A在出廠時均做成一種型式:出風口位置調整范圍0°~255°,間隔是45°,№7C~8C出風口位置調整范圍0°~180°,間隔是22.5°;№10E~20E單進風和雙進風出風口位置均制成固定的三種:0°、90°、180°,不能調整,如果您想要特殊機號、特殊出風口角度等非標號,我廠也可為您設計和制造,但訂貨時需詳細注明。
離心風機的結構
№3A~6A離心風機主要由葉輪、機殼、進風口等部分配直聯電機組成;№7C~12E除具有上述部分外,還有傳動部分。
(1)離心風機葉輪:由16個后傾圓弧薄板型葉片、曲線型前盤和平板后盤組成,均用鋼板制造,并經動、靜平衡校正,空氣性能良好,效率高,運轉平穩可靠。
(2)離心風機機殼:制成兩種不同型號,其中№3~12機殼制成整體;№14~20的機殼制成二開式,沿中分水平面分為兩半外,用螺栓連接。
(3)離心風機進風口:制成整體結構,用螺栓固定于風機一側,與軸向平行的截面為曲線形,它能使氣流順暢時入葉輪,且損失較小。
(4)傳動:由主軸、軸承箱、流動軸承、帶輪組成。





